Cash Hall

To live college life to the max means living on campus, and at WBU we offer student housing accommodations that are decked out with the latest safety, convenience and creature comfort features. Welcome home!

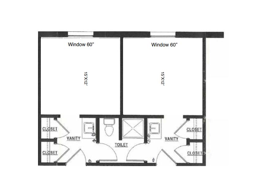
Cash Hall is another facility for men with fully-furnished rooms with semi-private baths.

Search